Sound Designer & Engineer
137_REVOLT_Exports-9854.JPG

Revolt. She Said. Revolt Again.

Urinetown The Musical

Revolt
She Said,
Revolt,
Again.

The Conservatory Of Theatre Arts At Webster University

design

The goal of sound in revolt was to help establish the locations and provide momentum throughout the play. We decided to use Electronica music to enforce the idea that we were in a fashion show or a club. This started with the pre-show music as the audience entered and the cast walked the runway. We continued the theme through transitions between each scene and act.

In Act two sound effects were used sparingly as we wanted the majority of the sounds to be created by the actors on stage through Foley objects. To ensure that some of the smallest foley objects could be heard over the dialogue we used wireless microphones attached to the foley cart to help reinforce the objects that were being manipulated live.

For Act 3 we wanted the entire scene to be underscored by a sound that grew overtime and misbehaved. But also still provided a beat to keep momentum up within the scene.This led us to the end of the act where we then used area mics for a monologue section to make it sound as if the actor was talking into an endless void.

Directed By - Joanna Battles

Sound Department

Sound Designer - Thomas White

Assistant Sound Designer - Sarah Holland

Sound Operator - Katy

Creative Team

Lighting Designer - Jonathan Skully

Scenic Designer - Maggy Nelson

Costume Designer - Dustin Thomas

Hair & Makeup Designer - Bekkah Toone

Pre - Show playlist

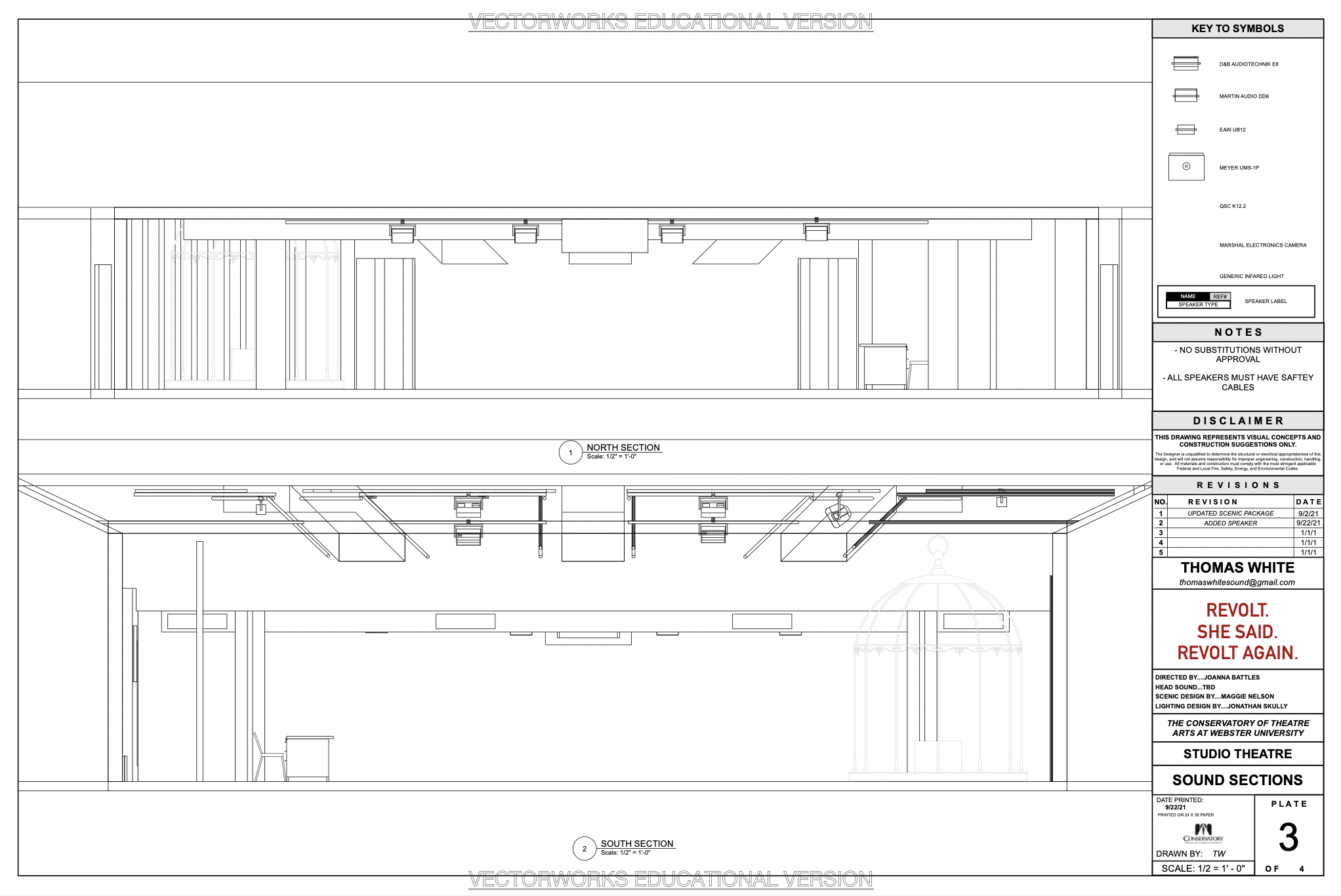
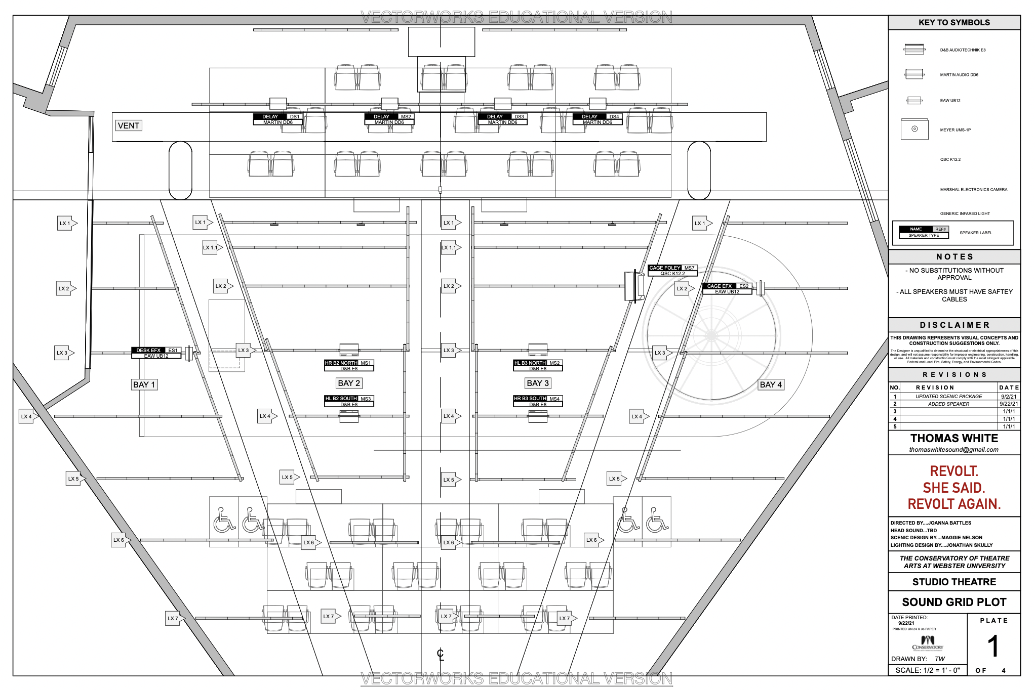
System Design

  • Digico SD11i

  • 4 D&B E8 Speakers with 2 D&B D6 Amplifiers.

  • 4 Martin DD6’s with Crown XTS 2002 Amplifier

  • 2 EAW UB12 with Crown CTS 1200 Amplifier

  • 1 Meyer UMS - 1P

  • 1 QSC K12

  • 1 Mac Pro Running Qlab 4 & Dante Virtual Soundcard (Main)

  • 2 Mac Minis running Qlab 4 (Backup & Video)

PAPERWORK PACKAGE

 

SOUND PLOT

 

SIGNAL FLOW

 
 

INPUT/OUTPUT LISTS

 

PROCESSING

 

OVERVIEWS

 

SFX CUE LIST